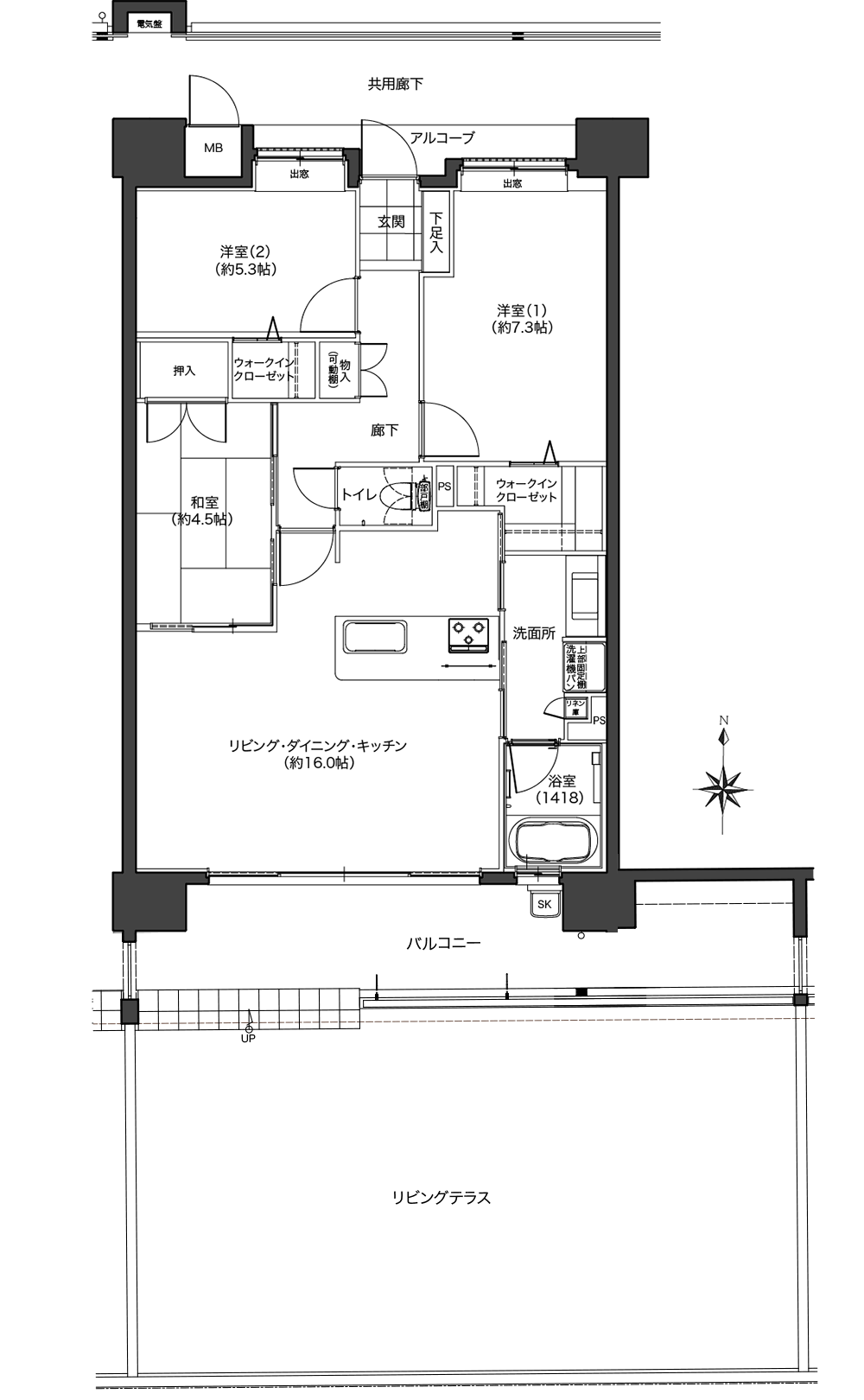
CTYPE [MENU PLAN 3]
3LDK+3WIC

リビングテラス付き

■合計面積 / 93.00㎡(28.13坪)

■専有面積/75.75㎡(22.91坪)
■バルコニー面積/1階:19.00㎡(5.75坪)
        /2〜6階:13.68㎡(4.14坪)
■アルコーブ面積/1階:3.22㎡(0.97坪)
        /2〜6階:3.57㎡(1.08坪)

■リビングテラス面積/56.25㎡(17.02坪)

※WIC:ウォークインクローゼット
※掲載の間取・面積は計画段階のもので今後変更になる場合があります。

長府エリア最大級
「長府紺屋町プロジェクト」
いよいよ最終章へ。

information

誰よりも早く知りたい方に、
いち早く情報をお届けいたします。

※掲載の周辺写真は2021年4月に撮影したもので、今後変わる場合があります。
※掲載の航空写真は現地付近から紺屋町方向を撮影(2021年4月撮影)したものにCG加工を施したもので、実際とは異なります。※掲載のマップはイメージイラストにつき実際とは異なる場合があります。